138-5256-1991
首页
公司介绍
产品中心
联系我们
产品中心
1030-1070系列C-轨道悬挂系统
带塑料鞍座的悬挂式站台台车,用于扁平电缆
产品编号:
XE1028F3-86/4
轮子
钢辊
材质
车体钢
支座塑料
五金件镀锌
耐温性
-30°C 至 +70°C
最大电缆负荷能力
10 公斤
重量(kg)
1,23
* 本产品一般与 16 路、24 路插头插座配套使用。这有助于快速和容易地安装。
* 安装在产品上的插座放置在此照片中是为了说明应用,而不是与产品一起出售
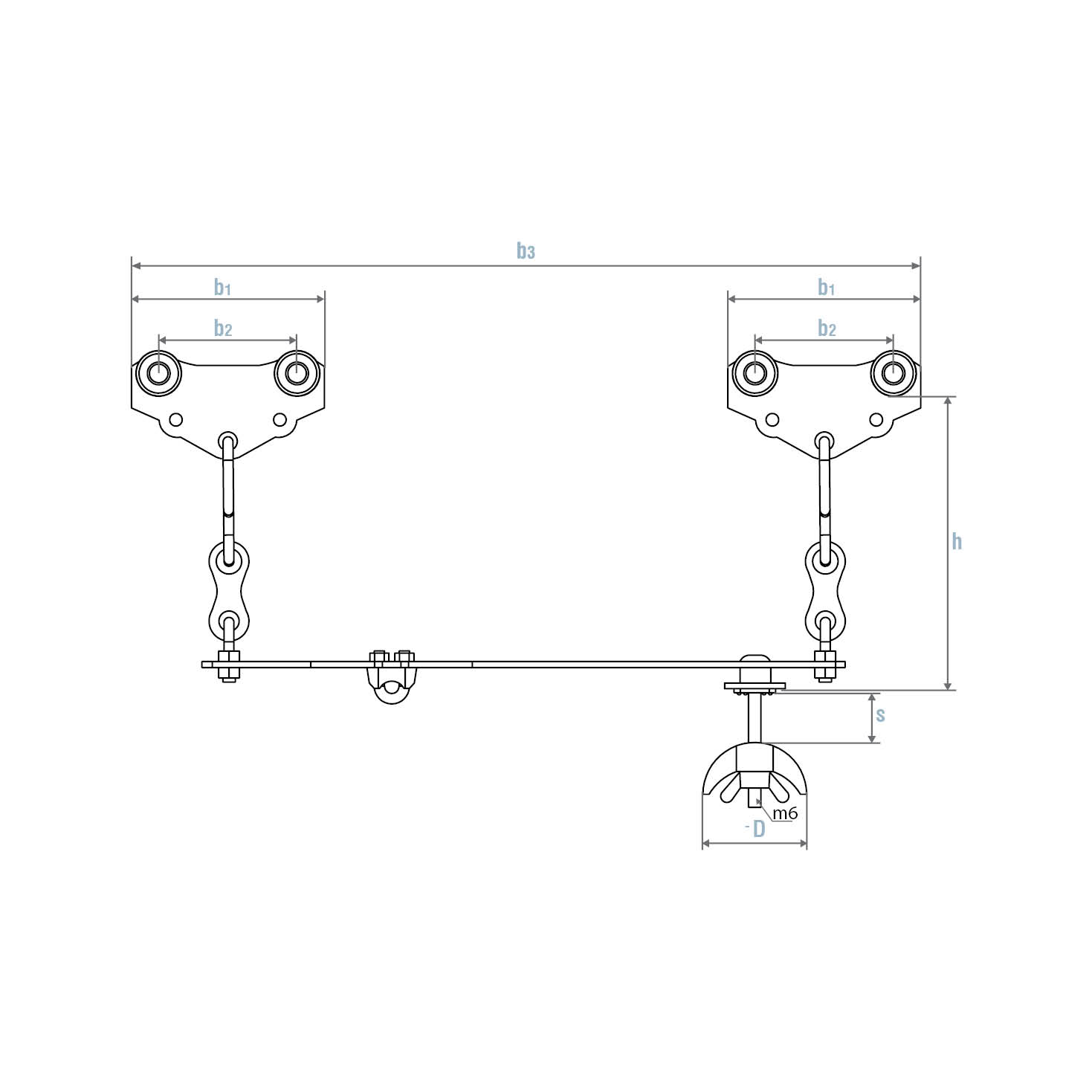
尺寸(mm)
A
B1
B2
B3
S
H
W1
W2
ØD
125
93
66
380
17
80
21
22
50